Ekrem Elginkan Highschool
2003
A high school in harmony with the topography where education meets landscape

Discipline:
Architecture
Type:
Education
Status:
Built
Location:
Sarıyer, Istanbul, Turkey
Team:
Selim Velioğlu, Murat Aksu, Umut İyigün, Ebru Göktekin, Meltem Oztürk
Client:
Elginkan Holding / ITU
Project Date:
2003
Construction Date:
2004
Construction Area:
7.240 m2
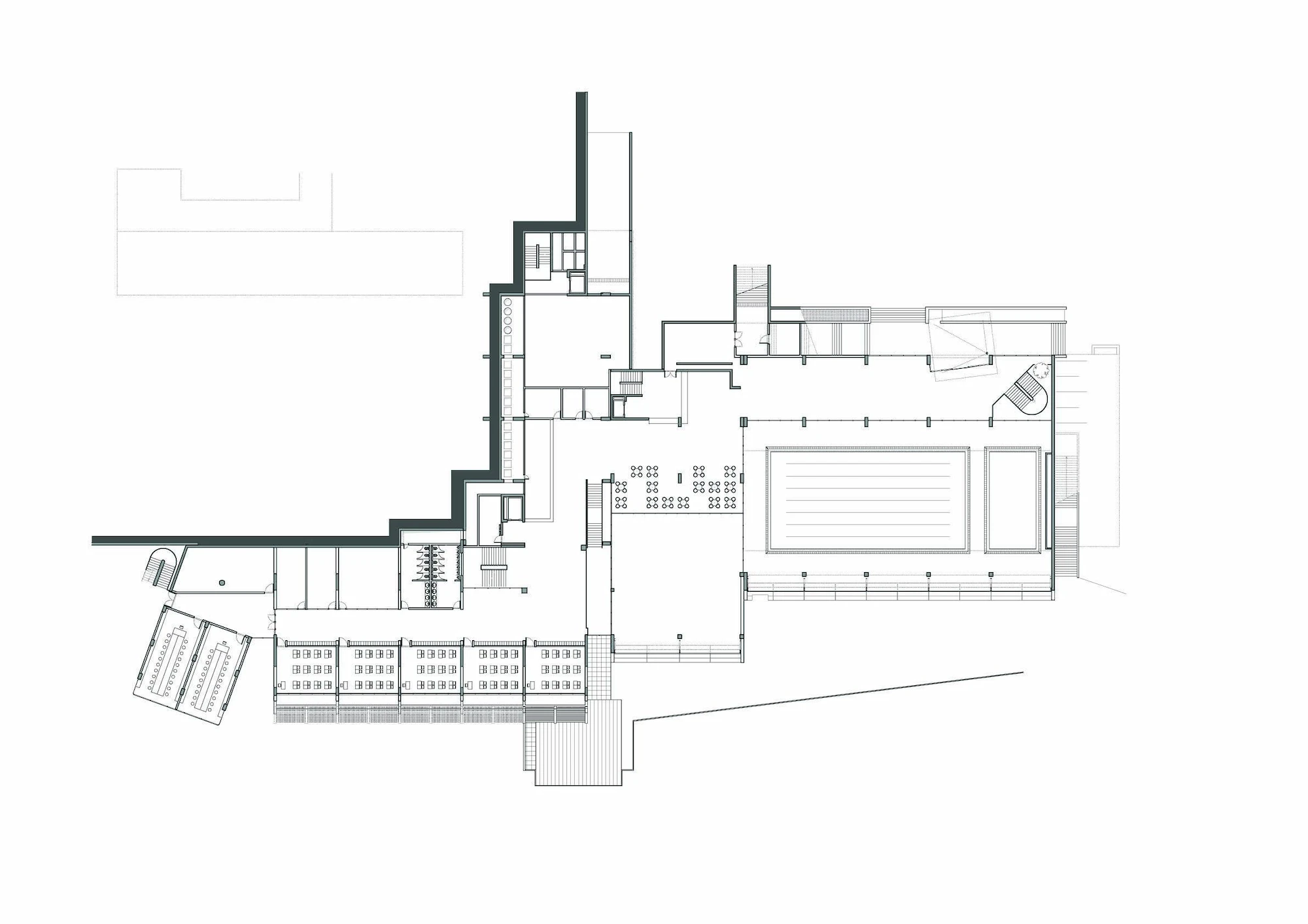
The project aims to design a building that complements the primary school building with which it has a neighboring relationship on the dominant hill. The design doesn't create a large mass in the rearview by leaning on the steep slope behind it and is in harmony with the land. The sports fields and swimming pool open to the south, located between the primary school and the high school, constitute the common-use areas of both schools.



Challenge
The building consists of three main parts. The first part consists of classrooms, laboratories, administration, a multi-purpose hall, and social facilities, the second part includes the library and some workshops, and the third part includes the swimming pool and related functions. An inviting atmosphere has been created on the entrance façade of Ekrem Elginkan High School, which has impressive open spaces with a wide entrance platform and a carefully designed ceremony area combining green and wood.
Solution
Orienting the classrooms and the library towards the forest aims to provide a calm atmosphere to the spaces and, on the other hand, to keep these spaces spacious with the sunlight they receive from the south. An organization based on user experience is aimed at the space setup.














Putting people first.