Association of Turkish Notaries
2009
An office building organized by an atrium, promoting communication and fostering a sense of community.

Discipline:
Architecture
Type:
Office
Status:
Built
Location:
Ankara, Turkey
Team:
Selim Velioğlu, Umut İyigün, Orkun Özüer, Murat Aksu, Ezgi Ak, Adila Sancaklı, Serkan Şen, Feriye Yurdusev, Damla Ünal, Özlem Gümüş, Özlem Bağdiken
Client:
Türkiye Noterler Birliği
Project Manager:
Onen Mimarlık
Contractor:
ERVA
Project Date:
2006 - 2007
Construction Date:
2007 - 2009
Land Area:
6.871 m2
Construction Area:
20.000 m2
Landscape Architect:
AARTI
Structural Engineer:
YAPI MUHENDISLIK
Mechanical Engineer:
BETA
Electrical Engineer:
ATLANTIS
Photographer:
Gürkan Akay
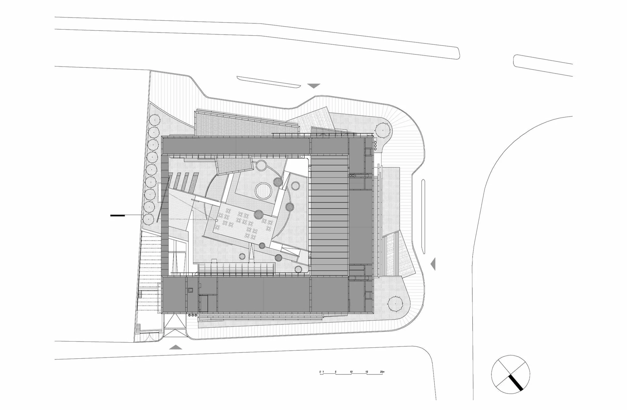
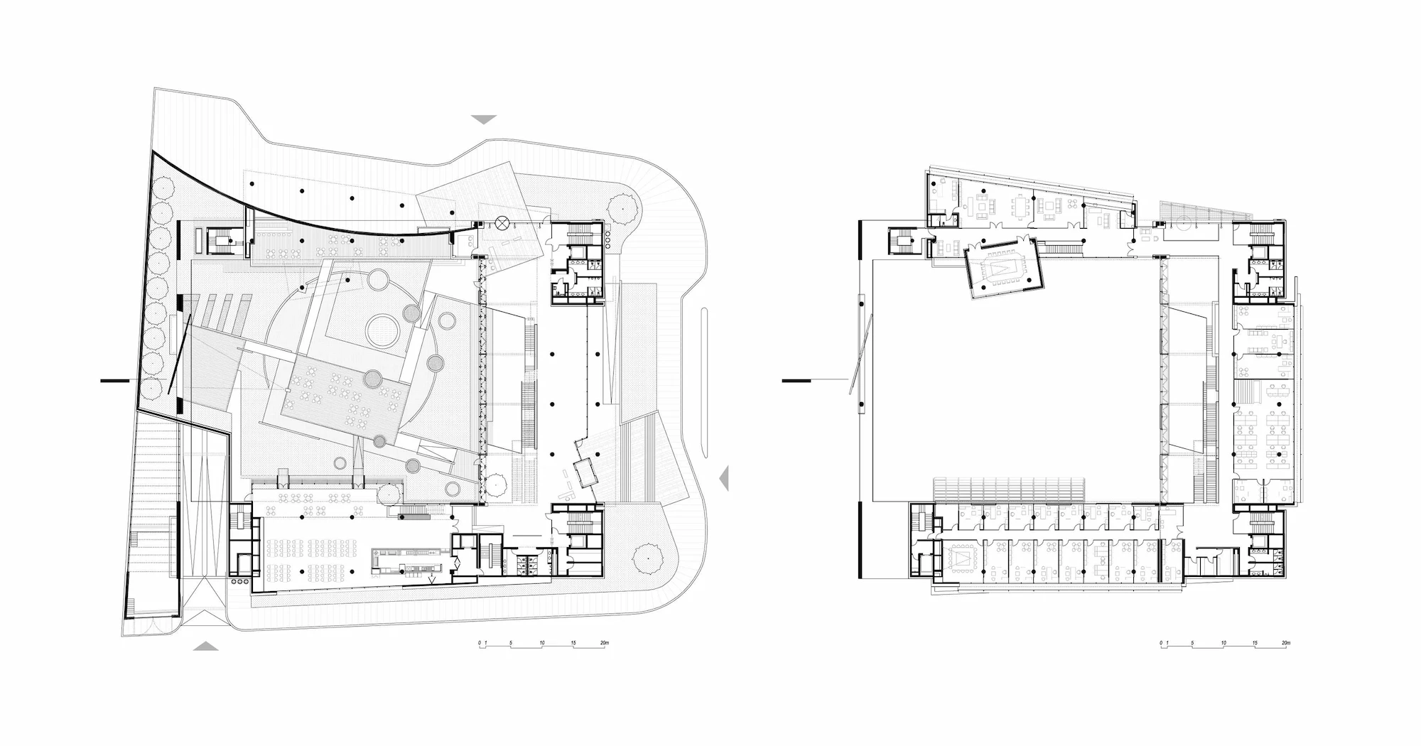
The design philosophy underlying the plan of the Turkish Association of Notaries Building is the formation of a “communications environment”. The connections between the interior and exterior spaces strengthen the communication between the notaries and the public while creating a social working environment.



Challenge
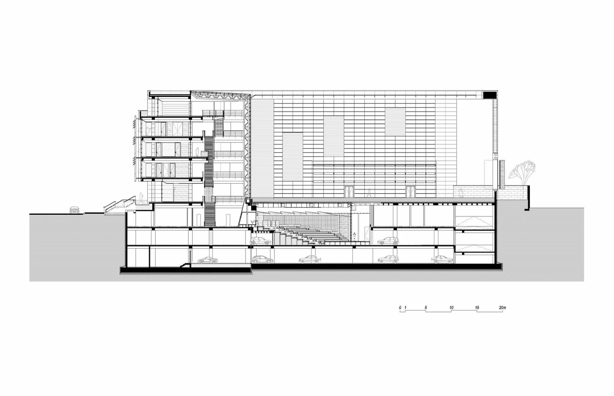
The building is a modern interpretation of the development of traditional caravansary schema which provides a contemporary and efficient working environment for the users. Since the courtyard can be perceived wherever you are in the building, it makes it easier to position yourself and find your way within the building.
Solution
The atrium, consisting of the conference hall foyer, the entrance, the exhibition hall, and the floor bridges, forms a visual and functional mass connecting the social and the working areas with the interior garden. The clarity of the building planning openness to perception, provision for continuity between the spaces and transparency are factors that were constantly highlighted at each stage of design.






































Putting people first.